Neubau Sporthalle Realschule Südstadt
Projektname:
Neubau Sporthalle Realschule Südstadt
Projektstand:
fertiggestellt und in Betrieb
Anlass:
Die alte Bestandshalle war für den derzeitigen Bedarf der Realschule Südstadt erheblich zu klein.
Grundlage:
Grundstück auf dem hinteren Gelände der ehemaligen Pauline-von-Mallinckrodtschule, jetzt 2. Standort der Realschule in der Südstadt am Querweg 140. Die neue Halle wird an das vorhanden Schulgebäude einseitig angebaut.
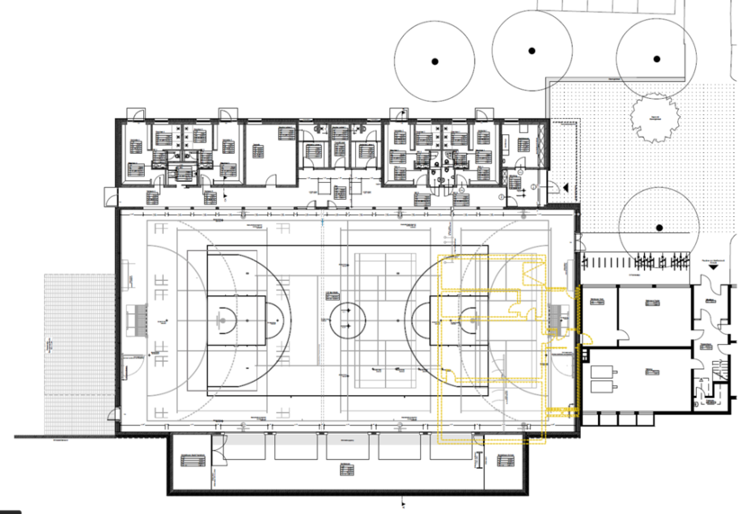
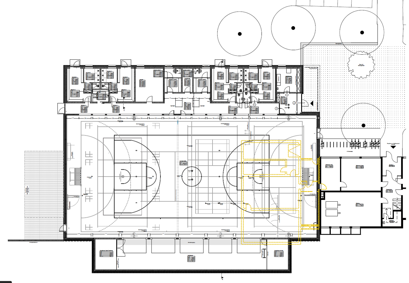
Raumprogramm:
Bei der Sporthalle Südstadt handelt es sich um eine DIN-gerechte 2-fach Sporthalle mit einer Größe von 22,00 x 45,00 Metern. Insgesamt werden in dem vorgelagerten eingeschossigen Sozialtrakt 4 Umkleiden mit WC-Anlagen, ein Technikraum, sowie diverse Nebenräume untergebracht. Auf der Südseite der Halle wird auf fast der gesamten Hallenlänge ein Geräteraum mit 2 kleinen Nebenräumen für die Schule und ggfls. einen Sportverein vorgesehen.
Kenndaten:
- Neubau: 2-fach Sporthalle - DIN-gerecht
- Bruttogrundrissfläche: 1.495,24 m²
- Bruttorauminhalt: 12.295,05 m³
- Ausführungsstart: September 2019
- Voraussichtlicher Fertigstellungstermin: Oktober 2020
