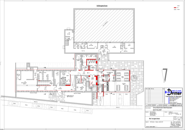
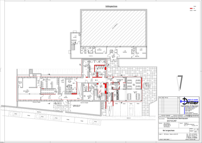
Sie befinden sich hier:GMPProjekteAusgewählte Umbau-/ ModernisierungsprojekteGrundschule Benhausen Grundschule Benhausen © Ingenieurbüro DrillerProjektname:Grundschule BenhausenProjektstand: GenehmigungsplanungMaßnahmen: Errichtung von Mensaflächen im Kellergeschoss Energetische Sanierung der Außenhülle Kenndaten:Umsetzung: 2021 - 2023© Stadt Paderborn© Stadt Paderborn