Sanierung und Erweiterung Kita Hinter den Höfen
Projektname:
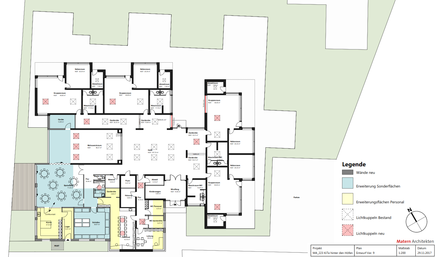
Sanierung und Erweiterung Kita Hinter den Höfen / Wewer
Projektstand:
im Bau
Maßnahmen:
Erweiterung der Kita um einen Anbau von einer Fläche von 286 m².
Kenndaten:
Ausführungsstart: Sommer 2020
Voraussichtlicher Fertigstellungstermin: August 2021
Neue Gesamtfläche: ca. 1.170 m²
